
SOUTHERN POVERTY LAW
Client: Southern Poverty Law Center
Location: Montgomery, AL
Year: 2001
Area: 60,000 sf
Recognition:
2008 – AIA Montgomery Alabama Chapter Honorable Mention: Southern Poverty Law Center Office Building
2001 – AIA Philadelphia Gold Medal: Southern Poverty Law Center
2004 – AIA Gulf States Region Honor Award: Southern Poverty Law Center, Montgomery, AL
1998 – AIA Pennsylvania Excellence in Design Unbuilt Category: Southern Poverty Law Center Headquarters (Montgomery, Alabama)
Publication:
Architecture Magazine September 2011
Architecture Politics and Cultural Agency 2005
Synopsis:
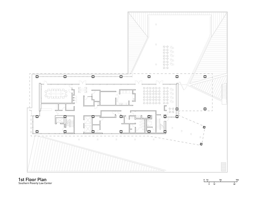
Located in Montgomery, Alabama, the Southern Poverty Law Center is known for its courtroom accomplishments, legal victories against white supremacist groups, monitoring of hate activity across the country, national tolerance education and the Civil Rights Memorial. The work of the Southern Poverty Law Center is essential in the fight against intolerance in this country and the struggle for equality. The architecture of the building is intended to express the values and mission of the client. The south facade emphasizes their solidarity and strength of purpose.
Location: Montgomery, AL
Year: 2001
Area: 60,000 sf
Recognition:
2008 – AIA Montgomery Alabama Chapter Honorable Mention: Southern Poverty Law Center Office Building
2001 – AIA Philadelphia Gold Medal: Southern Poverty Law Center
2004 – AIA Gulf States Region Honor Award: Southern Poverty Law Center, Montgomery, AL
1998 – AIA Pennsylvania Excellence in Design Unbuilt Category: Southern Poverty Law Center Headquarters (Montgomery, Alabama)
Publication:
Architecture Magazine September 2011
Architecture Politics and Cultural Agency 2005
Synopsis:
Located in Montgomery, Alabama, the Southern Poverty Law Center is known for its courtroom accomplishments, legal victories against white supremacist groups, monitoring of hate activity across the country, national tolerance education and the Civil Rights Memorial. The work of the Southern Poverty Law Center is essential in the fight against intolerance in this country and the struggle for equality. The architecture of the building is intended to express the values and mission of the client. The south facade emphasizes their solidarity and strength of purpose.
