
DINING TERRACE
Client: Drexel University
Location: Philadelphia, PA
Date: 2010
Area: 7,000 sq. feet
Sustainability: Green Globe Certification
Recognition:
2010 - GBCA Construction Excellence Award: Best Industrial Institutional Project Under $15 Million – Drexel University Northside Dining Terrace / Drexel University Millennium Hall
Synopsis:
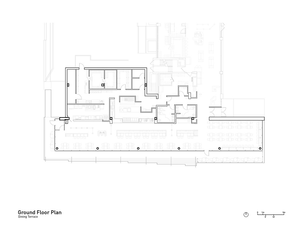
Located amongst a collegiate urban fabric the Northside Dining Terrace was designed to facilitate a pedestrian link for a community of students as well as providing a welcome change from the typical college dining experience, establishing a more intimate and less institutional setting.
The Dining Terrace is a 7,000 SF addition to the existing Kelly Hall dormitory on the campus of Drexel University. The building broke ground in May 2009 and was opened to students by the start of the 2010 spring semester.
The Dining Terrace seats approximately 140 students inside with some added seating outside on the terrace and out on the steps. This building takes advantage of the Green Globes sustainable design initiative to create a building which is energy and resource efficient, giving an operational savings and a space which is healthier to occupy.
Location: Philadelphia, PA
Date: 2010
Area: 7,000 sq. feet
Sustainability: Green Globe Certification
Recognition:
2010 - GBCA Construction Excellence Award: Best Industrial Institutional Project Under $15 Million – Drexel University Northside Dining Terrace / Drexel University Millennium Hall
Synopsis:
Located amongst a collegiate urban fabric the Northside Dining Terrace was designed to facilitate a pedestrian link for a community of students as well as providing a welcome change from the typical college dining experience, establishing a more intimate and less institutional setting.
The Dining Terrace is a 7,000 SF addition to the existing Kelly Hall dormitory on the campus of Drexel University. The building broke ground in May 2009 and was opened to students by the start of the 2010 spring semester.
The Dining Terrace seats approximately 140 students inside with some added seating outside on the terrace and out on the steps. This building takes advantage of the Green Globes sustainable design initiative to create a building which is energy and resource efficient, giving an operational savings and a space which is healthier to occupy.
