
330 COOPER ST.
Client: Rutgers University Camden
Location: Camden, NJ
Year: 2012
Area: 161,653 sf
Recognition:
2012 – AIA Philadelphia Merit Award - Built Category
Synopsis:
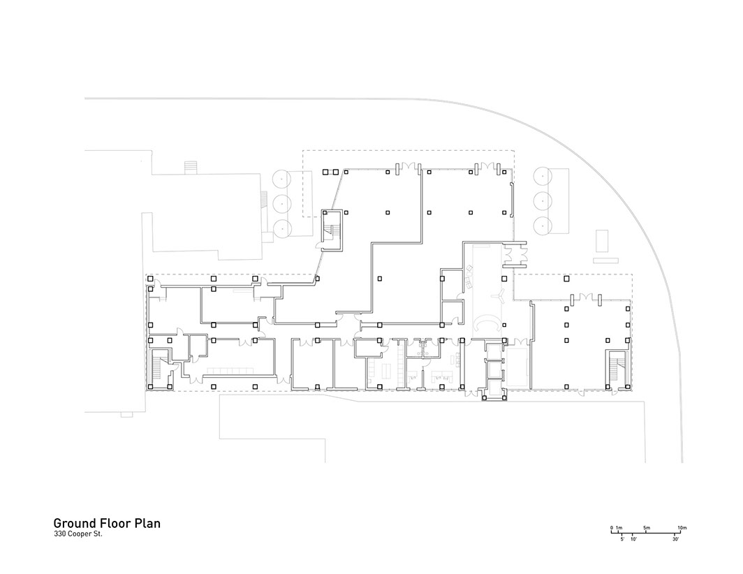
The Rutgers Camden Graduate Student housing project was aimed at boosting on-campus enrollment and revitalizing the city's downtown. The 12-story building on Cooper Street, the first new student housing in Camden in more than two decades, houses about 350 students and includes about 7,000 square feet of retail space on the ground level.
Erdy McHenry Architecture teamed with Michaels Development Company (MDC) for this very important project. MDC's university housing division, University Student Living, develops, constructs, and manages student housing communities in areas adjacent to colleges and universities across the country.
It has been a goal of the Rutgers Student Governing Association to increase on-campus population. This housing and retail complex brings new energy to this campus and creates critical mass, which will likely expand to surrounding downtown Camden, encouraging future development. The 7,00 square foot of retail space, defining the building at street level, re-establishes a language of community, greeting pedestrians and residents alike. Through innovative building practices, coalesced with a distinct neighborhood vernacular, the project is takign part in revitalizing Camden's community while creating a distinct collegiate environment.
Location: Camden, NJ
Year: 2012
Area: 161,653 sf
Recognition:
2012 – AIA Philadelphia Merit Award - Built Category
Synopsis:
The Rutgers Camden Graduate Student housing project was aimed at boosting on-campus enrollment and revitalizing the city's downtown. The 12-story building on Cooper Street, the first new student housing in Camden in more than two decades, houses about 350 students and includes about 7,000 square feet of retail space on the ground level.
Erdy McHenry Architecture teamed with Michaels Development Company (MDC) for this very important project. MDC's university housing division, University Student Living, develops, constructs, and manages student housing communities in areas adjacent to colleges and universities across the country.
It has been a goal of the Rutgers Student Governing Association to increase on-campus population. This housing and retail complex brings new energy to this campus and creates critical mass, which will likely expand to surrounding downtown Camden, encouraging future development. The 7,00 square foot of retail space, defining the building at street level, re-establishes a language of community, greeting pedestrians and residents alike. Through innovative building practices, coalesced with a distinct neighborhood vernacular, the project is takign part in revitalizing Camden's community while creating a distinct collegiate environment.
